wróć Wrocław Biskupin lokal usługowy z witrynami na parterze 190 m2 na sprzedaż

galeria zdjęć

opis nieruchomości

Wrocław Biskupin lokal usługowy parter witryny o pow. 190 m2 na sprzedaż.
Lokal położony w ciągu handlowym na osiedlu wielorodzinnym Wielkiej Wyspy,
w sąsiedztwie innych lokali usługowych oraz z bardzo dobrą ekspozycją.
Lokal wyposażony w klimatyzację, wentylację- w tym profesjonalna dla każdego rodzaju gastronomii.
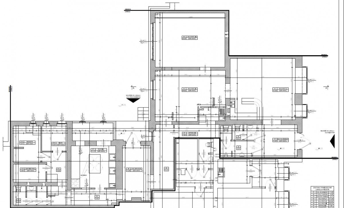
Dwa wejścia, w tym główne oraz od zaplecza (strefa dostaw).
Lokal posiada obecnie podział na 3 duże sale ekspozycyjne od 25 do 30 m2, 3 łazienki, zaplecze socjalne i małe biuro.
Dodatkowe atrybuty, to rampa rozładunkowa, a także elastyczna aranżacja,
która pozwala na dowolną adaptację (ścianki działowe GK) na każdą działalność gospodarczą.

Możliwość parkowania przed lokalem na parkingu ogólnodostępnym.
Lokal w bardzo dobrym stanie technicznym.
Oferta interesująca dla inwestorów z uwagi na możliwość funkcjonalnego podziału na dwa mniejsze lokale.
Cena sprzedaży 1.530.000 zł netto

Istnieje możliwość wynajmu lokalu z czynszem najmu 7000 zł netto plus koszty zarządzania i media wg zużycia.

Więcej informacji w biurze: ZAPRASZAMY INWESTORÓW, RENTIERÓW,
OSOBY ZAINTERESOWANE INWESTOWANIEM W SPRAWDZONE
SKOMERCJALIZOWANE LOKALE USŁUGOWE ORAZ INNE RODZAJE NIERUCHOMOŚCI
Wykonujemy projekty wnętrz, aranżacje, home staging z optymalnym budżetem oraz wizualizacje 3D – również online

Pośrednik odpowiedzialny zawodowo : Marta Janulewicz,  licencja nr 8787.
Kontakt: 693144566, 793514455.
MJ Consulting Wrocław posiada oferty komercyjne, usługowe, handlowe, inwestycyjne, logistyczne
Zapraszamy do kontaktu i na naszą stronę internetową www: mjconsulting.net
Więcej informacji zainteresowanym przesyłamy drogą e-mail.


 

Treść niniejszego ogłoszenia nie stanowi oferty handlowej w rozumieniu Kodeksu Cywilnego.
Informacje dotyczące opisu ofert zamieszczonych na naszej stronie powstały na podstawie informacji udzielonych przez właściciela i oględzin nieruchomości.
Kopiowanie, przetwarzanie i rozpowszechnianie tych materiałów w całości lub w części bez zgody firmy MJ CONSULTING jest zabronione i stanowi naruszenie praw autorskich.
Treść ma charakter informacyjny i zalecamy ich osobistą weryfikację. Kontaktując się z biurem Klient wyraża zgodę na przetwarzanie danych osobowych zgodnie z przepisami art. 6 ust 1 lit. a Rozporządzenia Parlamentu Europejskiego i Rady (UE) 2016/679/UE z 27.04.2016 r. w sprawie ochrony osób fizycznych w związku z przetwarzaniem danych osobowych i w sprawie swobodnego przepływu takich danych oraz uchylenia dyrektywy 95/46/WE (ogólne rozporządzenie o ochronie danych) (Dz.Urz. UE L 119, s. 1) oraz wdrożenia RODO w naszej firmie. Klientowi przysługuje prawo do wglądu do swoich danych osobowych i ich aktualizacji.

szczegóły oferty - 15401/MJC/LS

Rodzaj nieruchomościLOKALE USŁUGOWE I HANDLOWE
Rodzaj transakcjiSPRZEDAŻ
Cena cena w innych walutach 1 530 000 PLN
MiejscowośćWROCŁAW
Dzielnica - osiedleBISKUPIN
UlicaBISKUPIN
Powierzchnia użytkowa191 m²
Rodzaj lokalu / przeznaczenieHANDLOWO-USŁUGOWY, UŻYTKOWY
StandardBARDZO DOBRY
Wysokość kondygnacji [m]320 cm
Liczba pomieszczeń3
Udogodnienia dla inwalidówJEST