
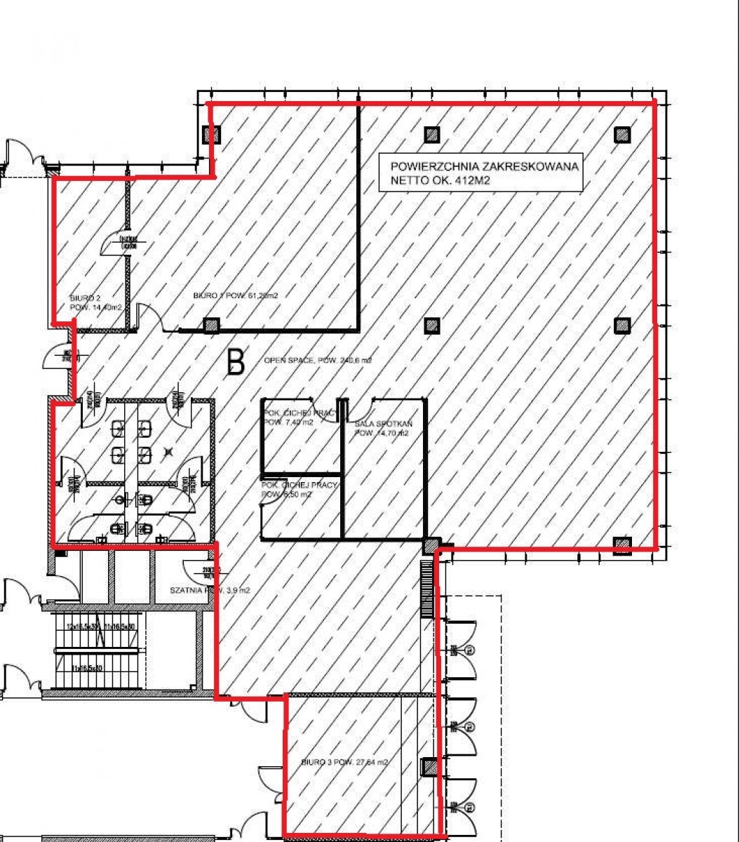
opis nieruchomości
Wrocław Muchobór mały, lokal użytkowy na przedszkole, żłobek o pow. 430 m2 na wynajem.
Lokal użytkowy o łącznej powierzchni 430 m2, na parterze z ogródkiem!
W planie zagospodarowania przestrzennego EDUKACJA, w tym żłobki, przedszkola, usługi opieki nad dziećmi.
Lokal położony na parterze budynku 6-pietrowego o funkcji usługowej i biurowej. Bardzo dobrze doświetlony z trzech stron,
wysokie okna typu witryny zapewniają przytulny klimat przez cały dzień.
Podłogi techniczne, sufity podwieszane, klimatyzacja oraz instalacja alarmowa i przeciwpożarowa.
Wysokość lokalu 3,4 m.
Lokal podzielony obecnie na kilka funkcjonalnych pomieszczeń, w tym sale szkoleniowe i zabawowe, gabinety dla opiekunów,
miejsce na szatnię i przebieralnię, zaplecza socjalne i sanitarne (wc damskie i męskie). Szerokie i wygodne korytarze,
a pomieszczenia podzielone ściankami G-K, co pozwala na dodatkową wygodną aranżację zgodnie z potrzebami najemców.
Dostęp do lokalu z ochroną i monitoringiem, co zapewnia dodatkowe bezpieczeństwo dla dzieci i klientów obiektu.
Lokal ma idealne warunki do opieki nad dziećmi z uwagi na oferowany ogródek, do którego jest wyjście dedykowane tylko dla tego lokalu.
Wakacje czynszowe oraz budżet na aranżacje ustalane są indywidualnie, w tym w zależności od działalności i koniecznych zmian w lokalu.
Proponowane warunki najmu:
Długość umowy – minimum 5 lat
Czynsz bazowy – 12,50 EUR/1 m2 netto z możliwością negocjacji.
Zaliczka na opłaty eksploatacyjne – 25,53 PLN/1m2 netto
Czynsz za miejsca parkingowe – 75 EUR netto za 1 miejsce miesięcznie
Zabezpieczenie – 3 miesiące (czynsz + opłaty SCH + VAT)
Zapraszam na spotkanie i ocenę powierzchni na miejscu
To doskonałe miejsce na każdy rodzaj działalności, biznes w otoczeniu klimatycznych zabytków i nowoczesnej infrastruktury.
Zapraszamy do kontaktu w celu oceny potencjału na miejscu
Więcej informacji w biurze: ZAPRASZAMY INWESTORÓW, RENTIERÓW, OSOBY ZAINTERESOWANE
INWESTOWANIEM W SPRAWDZONE SKOMERCJALIZOWANE
LOKALE USŁUGOWE ORAZ INNE RODZAJE NIERUCHOMOŚCI
Wykonujemy projekty wnętrz, aranżacje, home staging z optymalnym budżetem oraz wizualizacje 3D – również online
Pośrednik odpowiedzialny zawodowo : Marta Janulewicz, licencja nr 8787.
Kontakt: 693144566, 793514455.
Więcej informacji zainteresowanym przesyłamy drogą e-mail.
Informacje dotyczące opisu ofert zamieszczonych na naszej stronie powstały na podstawie informacji udzielonych przez właściciela i oględzin nieruchomości.
Opisy ofert i informacje w nich zawarte w każdej chwili mogą ulec aktualizacji i nie stanowią oferty w rozumieniu art.66 i następnych K.C.
Treść niniejszego ogłoszenia nie stanowi oferty handlowej w rozumieniu Kodeksu Cywilnego.
Informacje dotyczące opisu ofert zamieszczonych na naszej stronie powstały na podstawie informacji udzielonych przez właściciela i oględzin nieruchomości.
Kopiowanie, przetwarzanie i rozpowszechnianie tych materiałów w całości lub w części bez zgody firmy MJ CONSULTING jest zabronione i stanowi naruszenie praw autorskich.
Treść ma charakter informacyjny i zalecamy ich osobistą weryfikację. Kontaktując się z biurem Klient wyraża zgodę na przetwarzanie danych osobowych zgodnie z przepisami art. 6 ust 1 lit. a Rozporządzenia Parlamentu Europejskiego i Rady (UE) 2016/679/UE z 27.04.2016 r. w sprawie ochrony osób fizycznych w związku z przetwarzaniem danych osobowych i w sprawie swobodnego przepływu takich danych oraz uchylenia dyrektywy 95/46/WE (ogólne rozporządzenie o ochronie danych) (Dz.Urz. UE L 119, s. 1) oraz wdrożenia RODO w naszej firmie. Klientowi przysługuje prawo do wglądu do swoich danych osobowych i ich aktualizacji.
wyszukaj podobne oferty
szczegóły oferty - 15474/MJC/LW
mail: marta.janulewicz@gmail.com
mjconsulting.net@gmail.com
kom. 793 -514-455
mail: mjconsulting.net@gmail.com
kom. 693-144-566
mail: marta.janulewicz@gmail.com