
opis nieruchomości
Wrocław Białowieska, nowy lokal z witrynami parter 126 m2 na wynajem.
Nowa inwestycja i osiedle wielorodzinne Port Popowice. Atrakcyjna lokalizacja z uwagi na bardzo duże natężenie mieszkańców i ruch pieszo- jezdny.
Przeznaczenie: handel, salon usługowy kosmetyczny, Barber, fryzjer, usługi medyczne,
stomatologia, mała gastronomia, kawiarnia. W lokalu nie ma wentylacji gastronomicznej.
Obecnie lokal w stanie deweloperskim do samodzielnej adaptacji.
Lokal jest w stanie developerskim do indywidulanej adaptacji.
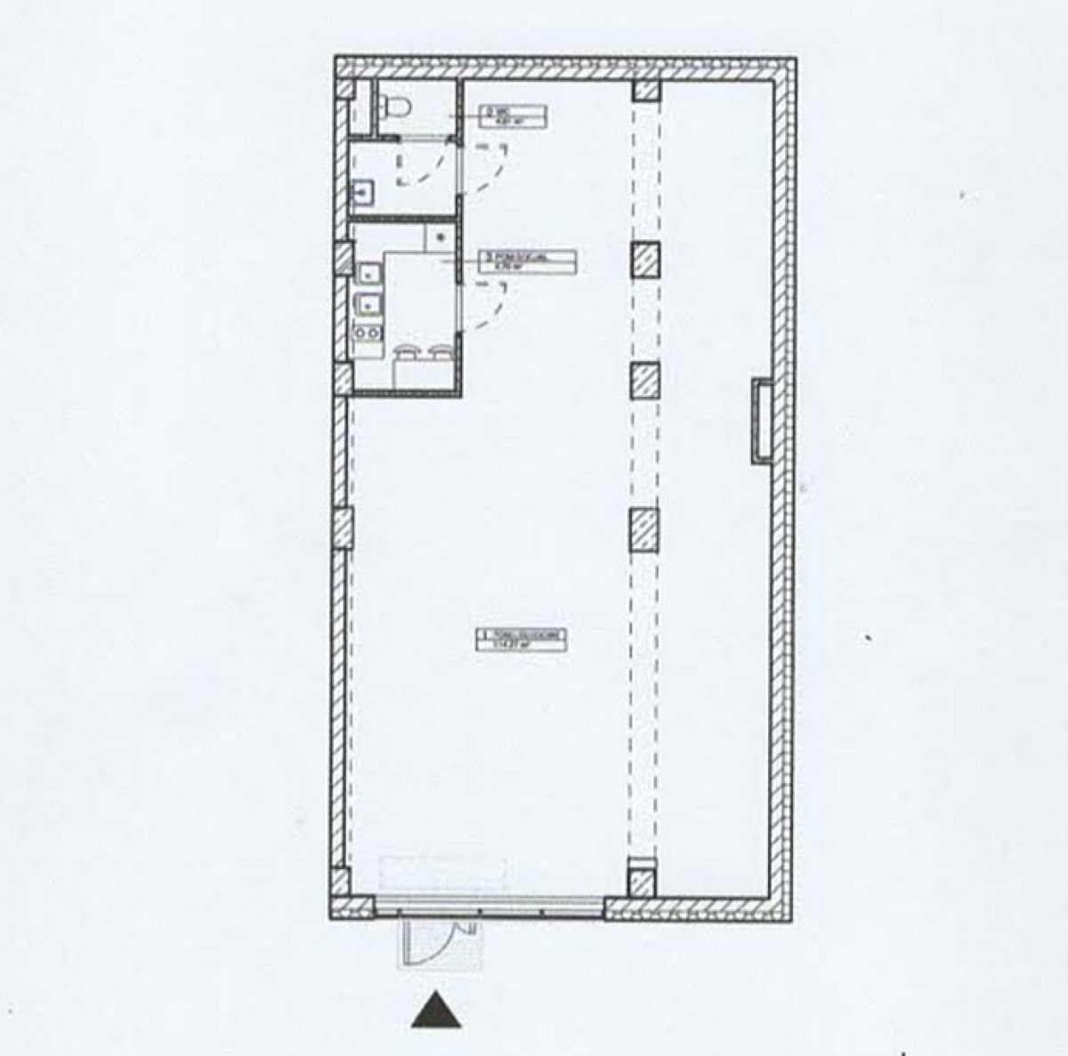
Wysokość pomieszczeń 3,2 m, układ w kształcie prostokąta.
Bardzo duże witryny i ekspozycja przy wjeździe na osiedle, doskonałe doświetlenie.
Miejsce na reklamy i znaki handlowe najemcy.
Powierzchnia całego lokalu: 125,84 m2, w tym:
W cenie lokalu miejsce postojowe w garażu podziemnym.
Czynsz najmu 9.000 zł oraz koszty zarządzania i media wg zużycia.
Ogrzewanie i media miejskie.
Zainteresowany? Umów bezpłatną prezentację: Marta Janulewicz, tel. 693144566
Q-Studio & Design Sp. z o.o. to Twoje wsparcie w sprzedaży i zakupie oraz wynajmie nieruchomości. Poznaj nasze usługi w projektowaniu i aranżacji wnętrz: z optymalnym budżetem, wizualizacje 3D – również online. Licencja PFRN nr 8787.
Informacje dotyczące opisu ofert zamieszczonych na naszej stronie powstały na podstawie informacji udzielonych przez właściciela i oględzin nieruchomości.
Opisy ofert i informacje w nich zawarte w każdej chwili mogą ulec aktualizacji i nie stanowią oferty w rozumieniu art.66 i następnych K.C.
Treść niniejszego ogłoszenia nie stanowi oferty handlowej w rozumieniu Kodeksu Cywilnego.
Informacje dotyczące opisu ofert zamieszczonych na naszej stronie powstały na podstawie informacji udzielonych przez właściciela i oględzin nieruchomości.
Kopiowanie, przetwarzanie i rozpowszechnianie tych materiałów w całości lub w części bez zgody firmy MJ CONSULTING jest zabronione i stanowi naruszenie praw autorskich.
Treść ma charakter informacyjny i zalecamy ich osobistą weryfikację. Kontaktując się z biurem Klient wyraża zgodę na przetwarzanie danych osobowych zgodnie z przepisami art. 6 ust 1 lit. a Rozporządzenia Parlamentu Europejskiego i Rady (UE) 2016/679/UE z 27.04.2016 r. w sprawie ochrony osób fizycznych w związku z przetwarzaniem danych osobowych i w sprawie swobodnego przepływu takich danych oraz uchylenia dyrektywy 95/46/WE (ogólne rozporządzenie o ochronie danych) (Dz.Urz. UE L 119, s. 1) oraz wdrożenia RODO w naszej firmie. Klientowi przysługuje prawo do wglądu do swoich danych osobowych i ich aktualizacji.
wyszukaj podobne oferty
szczegóły oferty - 15571/MJC/LW
mail: marta.janulewicz@gmail.com
mjconsulting.net@gmail.com
kom. 793 -514-455
mail: mjconsulting.net@gmail.com
kom. 693-144-566
mail: marta.janulewicz@gmail.com